ホテルライフォート札幌
〒064-0810
北海道札幌市中央区南10条西1丁目
電話番号 011-521-5211
周辺地図
- 地下鉄南北線「中島公園」駅3番出口より徒歩約3分
※地下鉄南北線「さっぽろ」駅から地下鉄南北線「中島公園」駅まで所要時間約5分 - タクシーではJR札幌駅から約10分
駐車場
- 自走式3階建駐車場 (150台)
- 車高:210cm、車幅:205cm、長さ:448cmの制限
- 駐車料金(一般):最初の1時間 1000円、以降30分毎に500円ずつ料金加算
※フロントの認証機に駐車券を通していただくと宴会・会議利用で最初の1時間300円・以後30分毎100円になります。
駐車台数に限りがあります。可能な限り、公共交通機関をご利用ください。
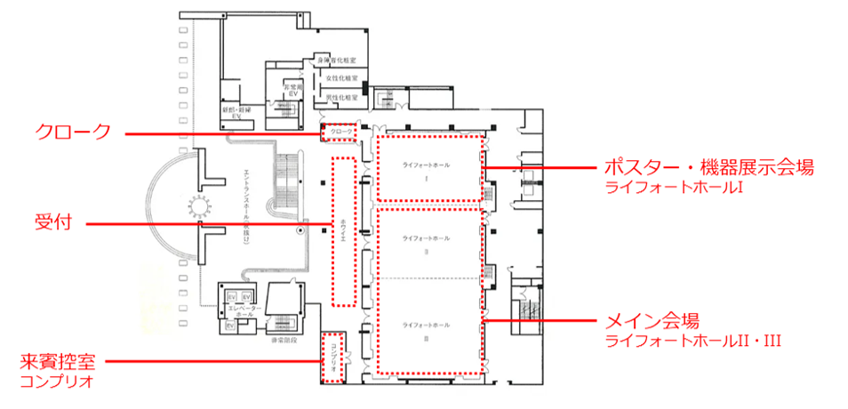
会場見取り図(2階)
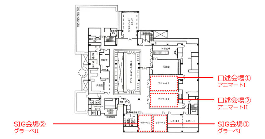
会場見取り図(3階)
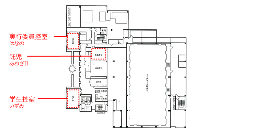
会場見取り図(4階)

